民航建工:智能建造技术引领,打造机场建设新典范
2019年9月25日,习近平总书记出席北京大兴国际机场投运仪式,对民航工作作出重要指示,要求建设以“平安、绿色、智慧、人文”为核心的四型机场。2020年秋季,民航部门发布《四型机场建设导则》,为国内各机场贯彻落实《中国民航四型机场建设行动纲要(2020-2035年)》提供了具体实施指南。在四型机场建设中,智慧机场建设是四型机场发展的重要技术支撑和基础保障。随着新时代民航强国战略的推进,我国各地机场基础设施建设取得了显著成效,涌现了以北京大兴机场、鄂州机场等为代表的四型机场示范项目。而这其中,都有民航机场建设工程有限公司(以下简称民航建工)参与建设的身影。
民航建工作为我国最早从事房建、机场建设的工程施工企业之一,1952年诞生于京津冀经济圈腹地天津滨海新区。其业务涉及机场场道、房屋建筑、市政公用、路桥城轨、港口码头、地基基础、钢结构、机电安装等多个领域,拥有200余项国家专利和多项工程领域一级资质,单位工程交工验收合格率100%,曾获得鲁班奖、詹天佑奖、国家优质工程金奖、中国市政工程金杯奖等国家级大奖57项,是国内机场禁区不停航施工和软土地基处理的行业领军企业。
新优势
创新引领民航机场建设
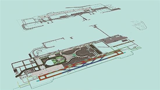
在中国民航机场建设的里程碑上,素有“北大兴、南白云”的说法。如果说北京大兴机场是新建机场的标杆,那么广州白云国际机场三期扩建工程就是扩建机场的标杆。白云机场三期扩建项目是中国民航历史上规模最大的改扩建工程,共有6条下穿通道,其中1号、4号、5号和6号下穿通道在飞行区域外采用明挖法施工,而位于机场东西两侧2号、3号下穿通道,是我国民航史上首次采用盾构法施工穿越既有运营跑道技术的施工项目,在施工时盾构机需要从机场道面下方穿越三条既有跑道,是本次改扩建工程的重难点项目。
“此次广州白云机场三期扩建工程不停航施工是史无前例的。”民航建工广州白云机场项目部负责人徐刚强说道。机场扩建工程要“不停航施工”,意味着既要保证飞行区客运航线的正常运行,又要确保工程区的施工作业进度,这对国内航空运输量连续4年位居第一的白云机场来说无疑增加了工程难度。徐刚强表示:“新扩建的东西飞行区要实现与现有飞行区的全断面对接,而且存在很多现有机场基建改造项目,对运行影响非常大。如何既确保机场正常运行,又顺利推进不停航施工、实现建运一体化是一个难点。”经过项目团队在前期策划阶段的周密考虑和精心组织,白云机场三期扩建工程创下了中国民航史上规模最大、难度最高的不停航施工纪录。

新技术
加速推动智慧机场标准建设
据了解,整个飞行区工程总体时间压缩至两年,具有“急、难、险、重”等特点。为确保工程建设按计划推进,民航建工通过智能建造管理平台,进行施工模拟、数字化施工、AR和三维激光扫描以及一系列智能监控设备等技术应用,助力项目精细化管理,辅助项目竣工验收,推动工程建设管理向数字化、集约化、现代化、高效化转型升级。
“不停航施工”意味着标段多、外部单位多、协调难度大,同时多专业技术复杂,地层存在液化砂层、软弱地基、土(岩)溶洞、上软下硬等特殊地层,需要BIM可视化协调与模拟。在施工前期,项目团队将智能建造技术运用于盾构模拟中,通过建立真实的盾构机模型进行前期掘进预演。前期预演可以为后续施工提供更加全面和科学的依据,在盾构掘进过程中,通过电子模型与现场实际对比,可以快速发现问题所在。
由于BIM技术的数据溯源和可视化管理,在施工时能精准将施工任务具体化、模块化,利用BIM技术实现全流程监控数据的实时传输。项目技术人员运用三维激光扫描技术复制实景,快速生成真色彩三维点云模型,并通过与BIM(建筑信息模型)对比分析,出具三维对比报告,及时发现施工存在的偏差,为后续工作提供准确信息,最终实现工程项目全生命周期的实时追溯。

运用智能建造平台及BIM技术,可以做到可视化交底、按模计量、按模施工、智慧工地、数字化施工、线上质量验评和电子档案留存。在验收环节,广州白云机场飞行区内工程首次进行BIM工具辅助验收的区域顺利通过竣工验收。项目团队牵头编制了广州白云机场三期扩建工程飞行区智能建造验评方案,深入飞行区内施工的排水沟、站坪、下穿通道等进行AR(虚拟现实)技术和三维激光扫描验评工具测试,通过技术手段进行模型与现场施工实体对比,验证了实模一致,大大提高验收效率和准确性。
同时,白云机场三期扩建项目聚焦智慧机场建设,运用BIM技术、数字孪生等数字化手段,提升设计精细化水平,推广智能建造在机场建设领域的应用,推动机场建设向工业化、数字化、智能化、生态化发展。
该项目是民航机场建设的“样板工程”,也是推动民航建筑业高质量发展的关键任务。谈到新质生产力,徐刚强认为,推动建筑业高质量发展,“数据”是第四大生产要素。“以前大家更关注用数字化解决质量问题,新质生产力则是通过数据采集、数据处理、自动预警和辅助决策,实现用数据量化目标和辅助决策。下一阶段,工程数据有望生成大模型,通过搭建数据基础库,用数据自动决策。”

新范式
积极打造智能化建造行业标杆
2021年8月,民航局发布《推动民航智能建造与建筑工业化协同发展的行动方案》(以下简称《行动方案》),提出建筑工业化从加大装配式建筑应用比例、拓展飞行区装配式应用场景、挖掘装配式产业体系资源三方面推广装配式应用,促进民航建设的工业化、数字化、智能化升级。
广州白云机场三期扩建工程,除盾构机下穿跑道外,还采用了全国首例装配式道面、机场装配式桥梁技术。机场三期扩建工程场道五标项目是国内民航专业首次采用大跨径装配式预制箱梁进行滑行道桥施工技术的项目。装配式道桥、装配式道面具有施工效率高、节能环保等优点,通过模块化设计及预制装配,流水化作业程度高,可以缩短工期、提升质量,大大减少桥梁施工现场作业。同时,预制构件均已在工厂内制作完成,节约模板用材及施工场地,避免了现场施工对环境的污染,同时还可以减少施工噪声,减少现场物料堆放,减少机场跑道出现外来物的风险。
新时期,新任务。民航建工将始终秉承“质量为本、速度争先、服务至上、业绩用人、兴企富民”的企业理念,以“机场工程+”为方向,整合内外部资源,向最具综合竞争力的机场建设总承包领域龙头企业迈进,为高质量推动机场全面建设作出新的更大贡献。